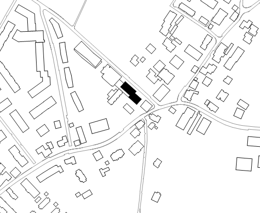
Ecole de Meinier
Réalisation d’une extension de l’école et aménagements extérieurs à Meinier. Le nouveau bâtiment éducatif se contextualise avec les différents bâtiments publiques voisins. Il cherche des rapports différenciés avec la rue, des associations légitimes avec les bâtiments historiques ainsi qu’une relation pragmatique avec les bâtiments du groupe scolaire.
Meinier
2017
Concours
BCRarchitectes, 5ème rang - 4ème prix
Maître d‘ouvrage
Commune de Meinier
Images
Play-time

PROJET
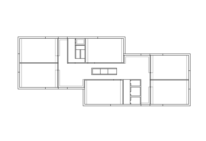
Le bâtiment se déforme créant des élargissements de trottoir, favorisant des zones d’accueils différenciées. La déformation du bâtiment crée deux espaces extérieurs attenants d’accueil du côté de la rue et du côté du parc.
TYPOLOGIE
La déformation du volume est un thème du projet. Cette démarche permet une réduction d’échelle qui met le nouveau bâtiment en rapport avec les volumétries des bâtiments existants du village. Le plan dégage six angles permettant l’aménagement de six salles de classe par niveau bénéficiant d’une vue panoramique sur l’environnement villageois. Elles bénéficient ainsi de vues croisées sur le village.


